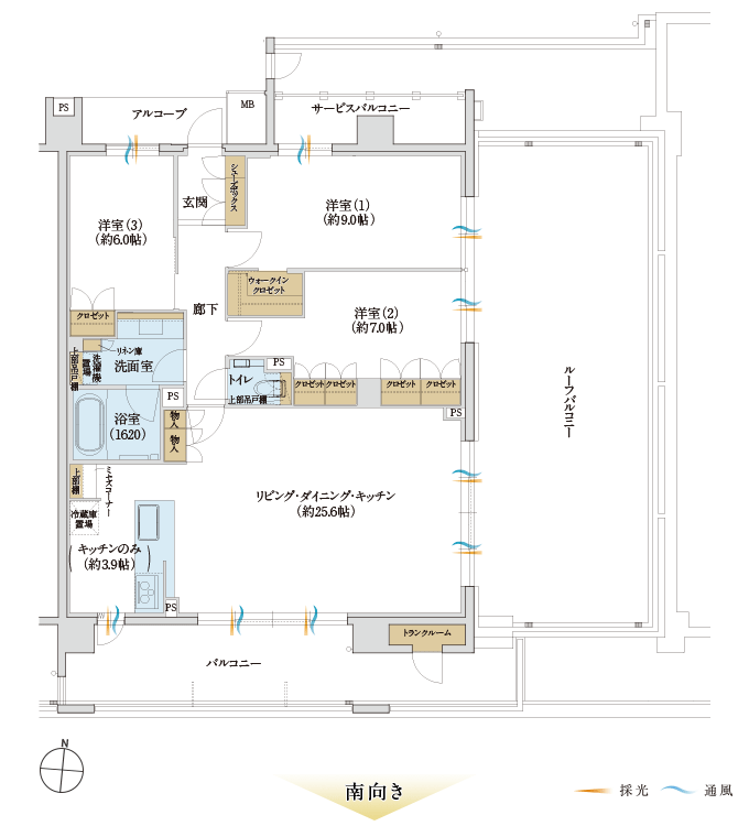
サンメゾン千種公園東 Gtype 3LDK+WIC 102.03㎡

ルーフバルコニーが暮らしを広げる、すっきり、心地よい毎日へ。

  • ワイドなルーフバルコニー付 三面採光の南東角住戸で、ダイニング側にもバルコニーを配置。
  • ウォークインクロゼットなど多彩な収納に加え、キッチン勝手口やミセスコーナーも魅力。
Gtype 3LDK+WIC 102.03㎡

WIC=ウォークインクロゼット